Công trình: Anh Nguyễn Văn Thành
Địa chỉ: P2001 tòa nhà chung cư Lilama 124 Minh khai-TP. Hà Nội
Sử dụng hệ thống điều hoà cục bộ âm trần nối ống gió và treo tường cao cấp, 2 chiều lạnh sưởi của hãng Daikin;
Sử dụng hệ thống thông gió thu hồi nhiệt cao cấp của hãng Daikin.
Bắt đầu thi công tháng 02 năm 2023, hoàn thành bàn giao đưa vào sử dụng tháng 6 năm 2023
Ảnh chuyển động
I)Yêu cầu của Chủ đầu tư:
-Yêu cầu hệ thống Điều hoà không khí cao cấp cho căn hộ;
-Yêu cầu hệ thống thông gió 2 chiều cho cả căn hộ.
II) Giải pháp nhà thầu Hanotech thiết kế:
-Về hệ thống điều hoà không khí:
Sử dụng hệ thống điều hoà cục bộ âm trần nối ống gió cao cấp 2 chiều lạnh sưởi cho phòng khách công suất 34100 btu/h, phòng bếp công suất 24200 btu/h. Phòng ngủ điều hoà cục bộ treo tường 2 chiều lạnh sưởi công suất 9000 btu/h của hãng Daikin.
-Về hệ thống thông gió 2 chiều:
Sử dụng bộ thông gió thu hồi nhiệt, lưu lượng 350 m3/h cao cấp của hãng Daikin.

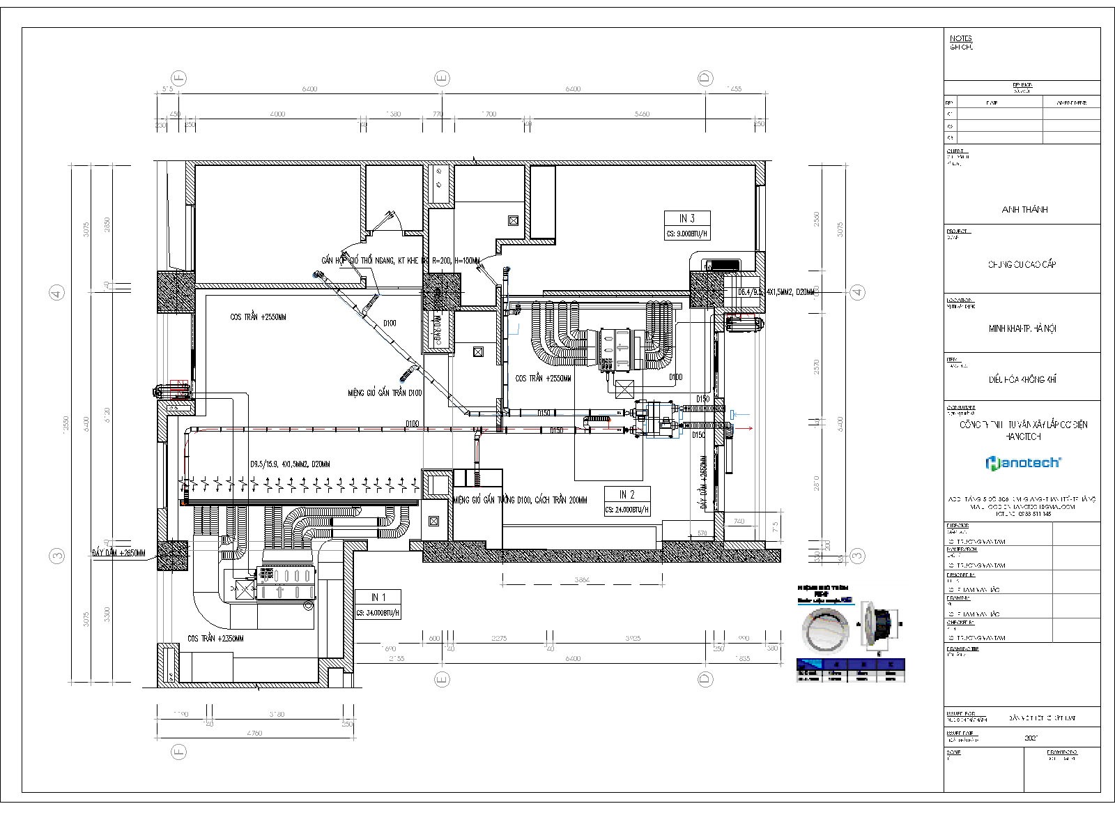
Bản vẽ thiết kế mặt bằng điều hoà thông gió
III) Một số hình ảnh trong quá thi công hoàn thiện

Thiết bị đúng chủng loại, xuất xứ theo hợp đồng

Lắp đặt đường thiết bị dàn lạnh, ống đồng, ống nước ngưng, dây điện

Lắp đặt đường thiết bị dàn lạnh, ống đồng, ống nước ngưng, dây điện

Ảnh hoàn thiện căn chỉnh cửa gió âm trần không viền

Hoàn thiện, vệ sinh bàn giao đưa vào sử dụng hệ thống

Bàn giao Chủ đầu tư đưa vào sử dụng
Quý anh chị cần tư vấn, thiết kế, thi công hệ thống điều hoà thông gió vui lòng liên hệ Hotline: 0988511145
Website: daikinthailand.co
Trân trọng cảm ơn!







