Công trình: Anh Nguyễn Xuân Thu
Địa chỉ: xã Giai Phạm-huyện Yên Mỹ-tỉnh Hưng Yên
Sử dụng hệ thống điều hoà Trung tâm 2 chiều lạnh sưởi VRV H cao cấp của hãng Daikin
Bắt đầu thi công tháng 01 năm 2021, hoàn thành bàn giao đưa vào sử dụng tháng 7 năm 2021
Ảnh chuyển động
I)Yêu cầu của Chủ đầu tư:
-Yêu cầu hệ thống Điều hoà không khí cao cấp và hệ thống cấp khí tươi cho không gian phòng ngủ tầng 2
II) Giải pháp nhà thầu Hanotech thiết kế:
-Tầng 1, 2, 3 sử dụng dàn lạnh âm trần nối ống gió cao cấp công suất lạnh/ sưởi từ 9800 Btu/h/ đến 24200 Btu/h, kết nối 01 dàn nóng trung tâm VRVH công suất 8HP tương đương 76500 Btu/h;
-Tầng 4 phòng thờ sử dụng 01 máy điều hoà cục bộ treo tường công suất 11900 Btu/h.

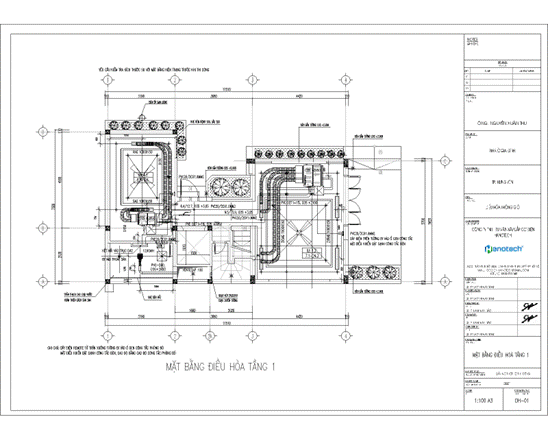
Bản vẽ thiết kế mặt bằng điều hoà tầng 1

Ảnh hoàn thiện tầng 1

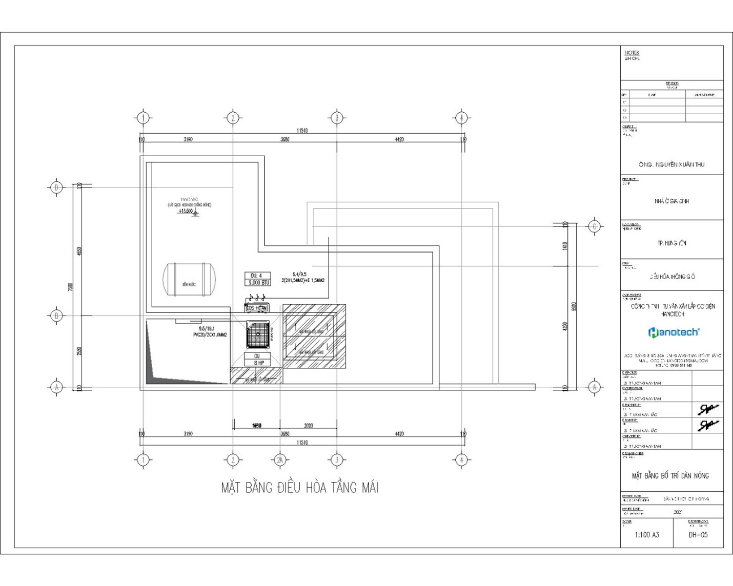
Bản vẽ thiết kế mặt bằng điều hoà tầng mái

Ảnh hoàn thiện tầng mái
III) Bên cạnh đó, chủ đầu tư tin tưởng giao cho Hanotech lựa chọn và lắp đặt hệ thống máy phát điện và chống sét chủ động:
- Máy phát điện sử dụng hãng Denyo công suất 20 /22 kVA – xuất xứ Indonesia, kèm Tủ chuyển nguồn tự động ATS 63A 4P – xuất xứ Việt Nam

Ảnh máy phát điện


Ảnh tủ chuyển đổi nguồn tự động
- Hệ thống chống sét chủ động, kim thu sét hãng Pantheon (Thổ Nhĩ Kỳ) kèm bộ đếm sét, bán kính bảo vệ 55 đến 65 mét, đảm bảo an toàn tuyệt đối cho thiết bị cả ngôi nhà trong đó có thiết bị Điều hoà và Máy phát điện

Hình ảnh kim thu sét hãng Pantheon (Thổ Nhĩ Kỳ), lắp đặt bảo vệ thiết bị toà nhà (bao gồm dàn nóng Điều hoà)

Hình ảnh kim thu sét, bộ đếm sét và thi công bãi tiếp địa
Hình ảnh kim thu sét, bộ đếm sét và thi công bãi tiếp địa









