Công trình: Bác Nguyễn Thị Phương Lâm
Địa chỉ: Căn hộ 801 và 802 Chung cư Five star west lake-162 Hoàng Hoa Thám-Quận Tây Hồ-Thành phố Hà Nội
Sử dụng hệ thống điều hoà Multi 2 chiều lạnh sưởi cao cấp của hãng Daikin
Bắt đầu thi công tháng 7 năm 2021, hoàn thành bàn giao đưa vào sử dụng tháng 12 năm 2021
Ảnh chuyển động
- Yêu cầu của Chủ đầu tư:
-Hệ thống điều hoà 2 chiều âm trần cao cấp cho 02 căn hộ số 801 và 802;
-Hệ thống cấp khí tươi cho không gian phòng ngủ
II) Giải pháp nhà thầu Hanotech thiết kế:
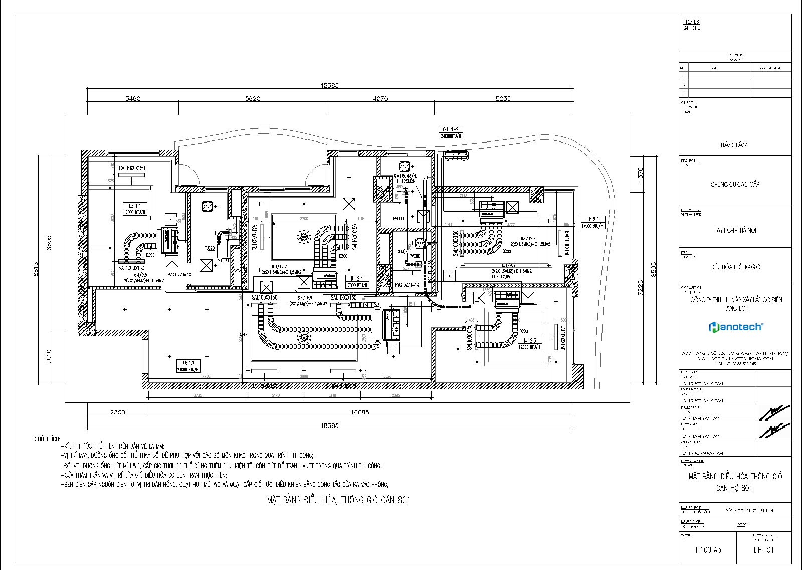
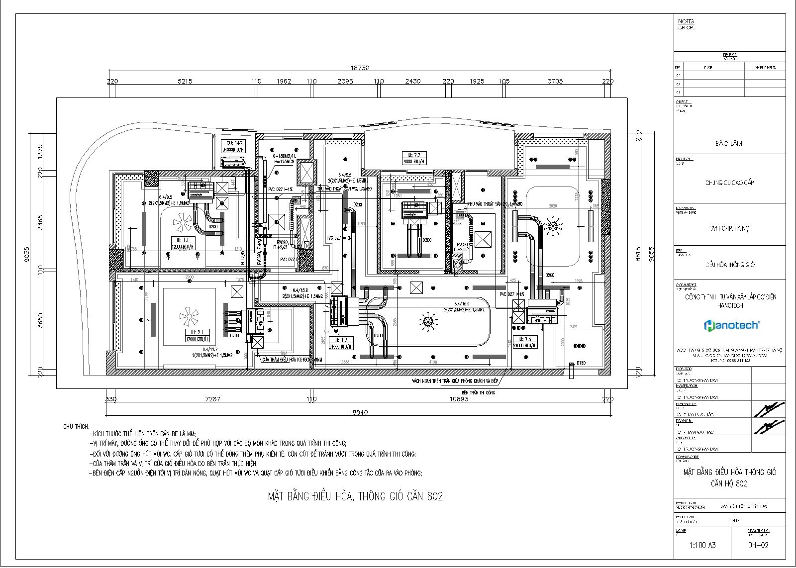
-Về điều hoà mỗi căn hộ sử dụng 05 dàn lạnh âm trần nối ống gió công suất từ 8500 btu/h đến 24200 btu/h, kết nối tới 02 dàn nóng 2 chiều lạnh sưởi công suất 34100 btu/h đặt ngoài ban công mỗi căn hộ hãng Daikin;
-Về thông gió mỗi căn hộ sử dụng 01 quạt cấp khí tươi kết nối đường ống dẫn tới các phòng ngủ của hãng Nedfon.

Danh mục thiết bị sử dụng cho mỗi căn hộ

Bản vẽ thiết kế điều hoà thông gió căn hộ 801

Bản vẽ thiết kế điều hoà thông gió căn hộ 802
- Một số hình ảnh trong quá trình thi công, hoàn thiện


Sử dụng đúng chủng loại vật tư thiết bị đã ghi trong hợp đồng, đảm bảo chất lượng

Thi công lắp đặt dàn lạnh âm trần nối ống gió

Thi công lắp đặt dàn lạnh âm trần nối ống gió

Thi công lắp đặt dàn nóng điều hoà Multi

Nén thử kín hệ thống sau khi lắp đặt, hút chân không, chạy thử trước khi bàn giao Chủ đầu tư đưa vào sử dụng
Quý anh chị cần tư vấn, thiết kế, thi công hệ thống điều hoà thông gió vui lòng liên hệ Hotline: 0988511145
Website: daikinthailand.co
Trân trọng cảm ơn!






