Công trình toà nhà: Gia đình Ông Nguyễn Văn Ất và Bà Nguyễn Thị Thử
Đại diện: Ông Nguyễn Văn Quý làm Chủ đầu tư
Địa chỉ: Số 89 đường Đắc Sở 2, thôn Đông, xã Đắc Sở, huyện Hoài Đức, TP. Hà Nội
Công trình được xây dựng bằng tinh thần đoàn kết giữa 4 anh em trai do anh cả Ông Nguyễn Văn Quý làm đại diện Chủ đầu tư, vừa để báo hiếu bố mẹ vừa là nơi các dịp cuối tuần, lễ tết con cháu quây quần bên đại gia đình.

I)Yêu cầu của Chủ đầu tư:
-Yêu cầu hệ thống Điều hoà không khí âm trần cao cấp, phù hợp với nhu cầu sử dụng của từng không gian, thời gian ở của các thế hệ trong gia đình;
-Yêu cầu hệ thống cấp khí tươi cho không gian các phòng ngủ trong toà nhà.
II) Giải pháp nhà thầu Hanotech thiết kế:
Căn cứ công năng cũng như nhu cầu sử dụng, nhà thầu Hanotech tư vấn Chủ đầu tư lựa chọn hệ thống điều hoà thương hiệu Mitsuheavy với công năng từng hệ máy như sau:
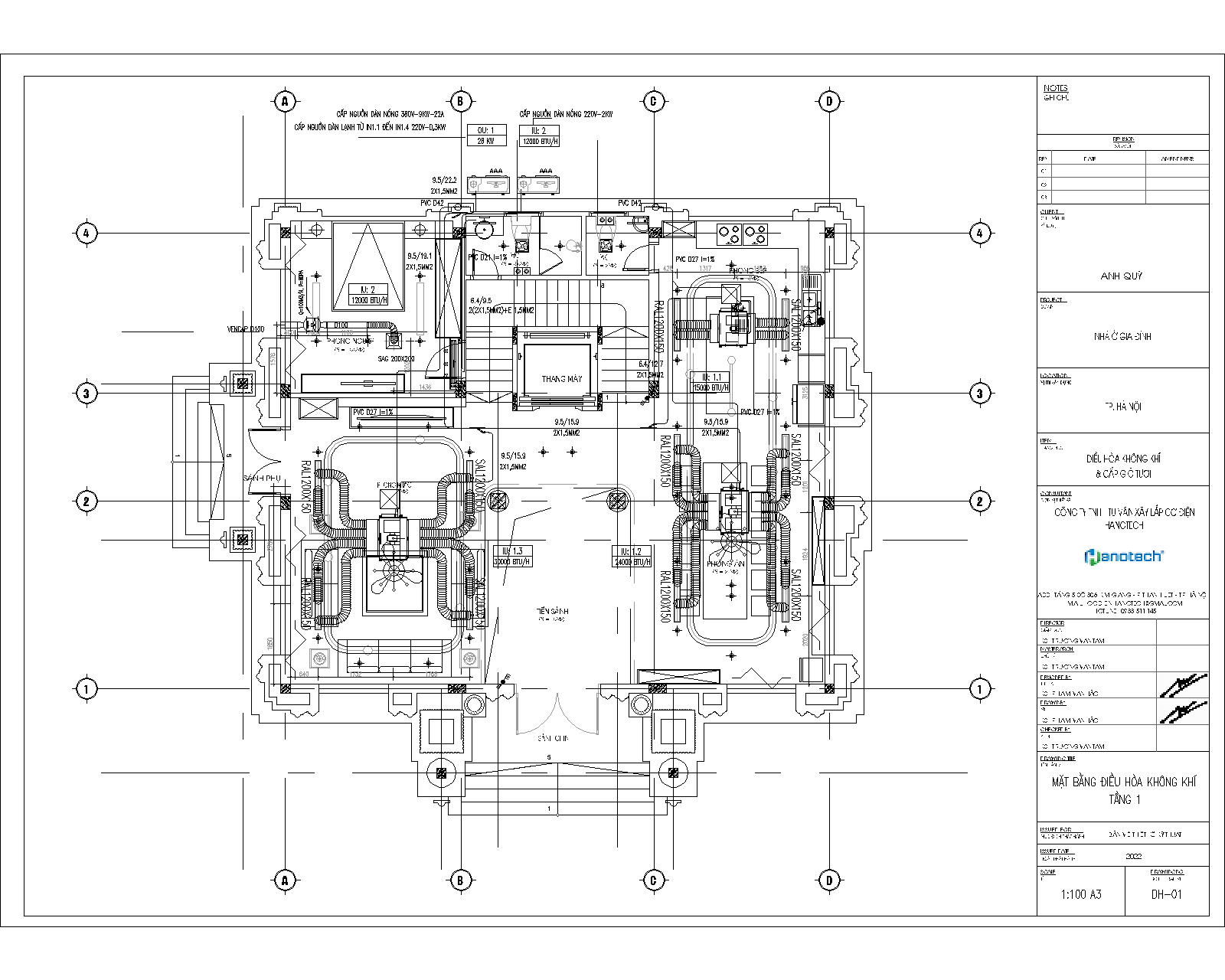
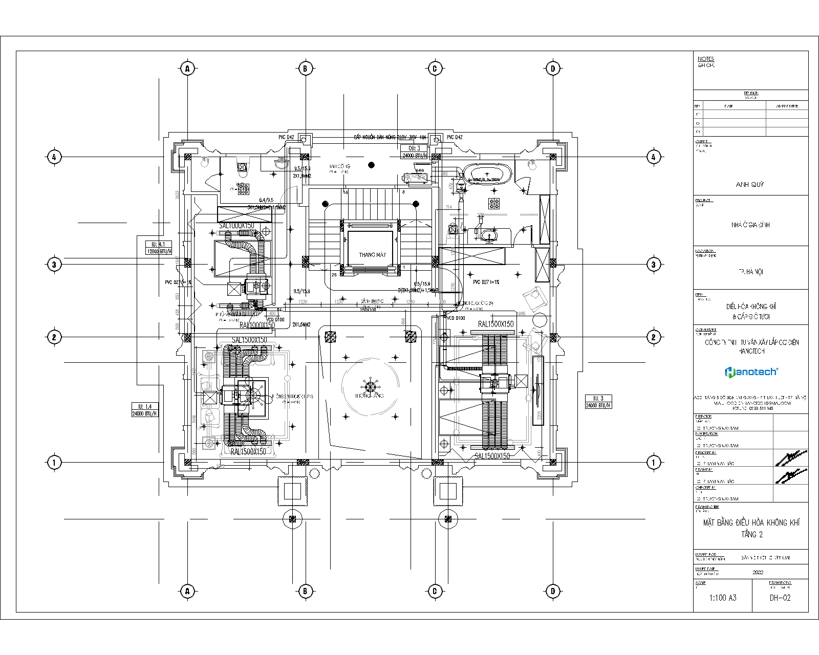
- 01 tổ điều hoà trung tâm VRF 2 chiều lạnh/ sưởi Inverter, dàn nóng 10Hp và 4 dàn lạnh âm trần nối ống gió cho không gian sinh hoạt chung tầng 1 và tầng 2;

Bản vẽ mặt bằng điều hoà tầng không khí 1

Bản vẽ mặt bằng điều hoà không khí tầng 2
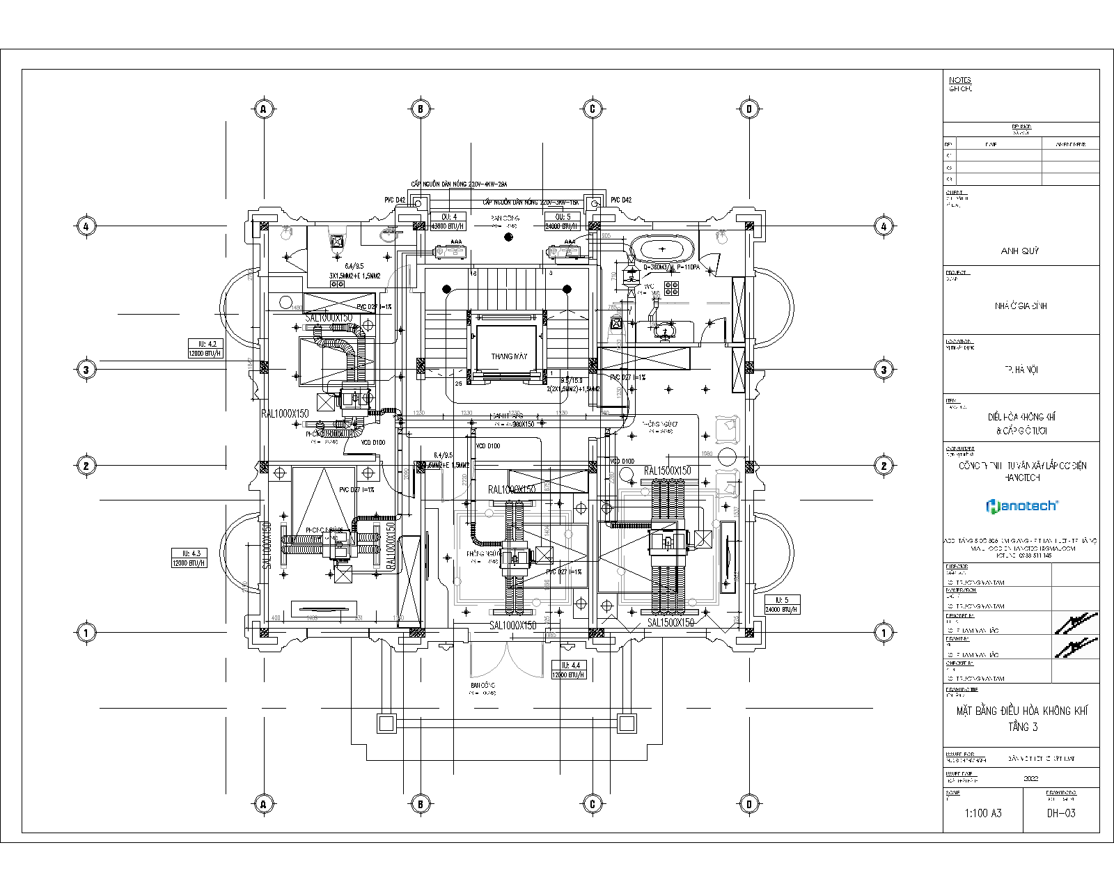
- 05 bộ điều hoà cục bộ âm trần nối ống gió Mitsuheavy, 2 chiều lạnh sưởi Inventer công suất 24200 btu/h mỗi máy. Bố trí nằm tại các phòng ngủ lớn tầng 2, 3, 4, 5.

Bản vẽ mặt bằng điều hoà không khí tầng 3
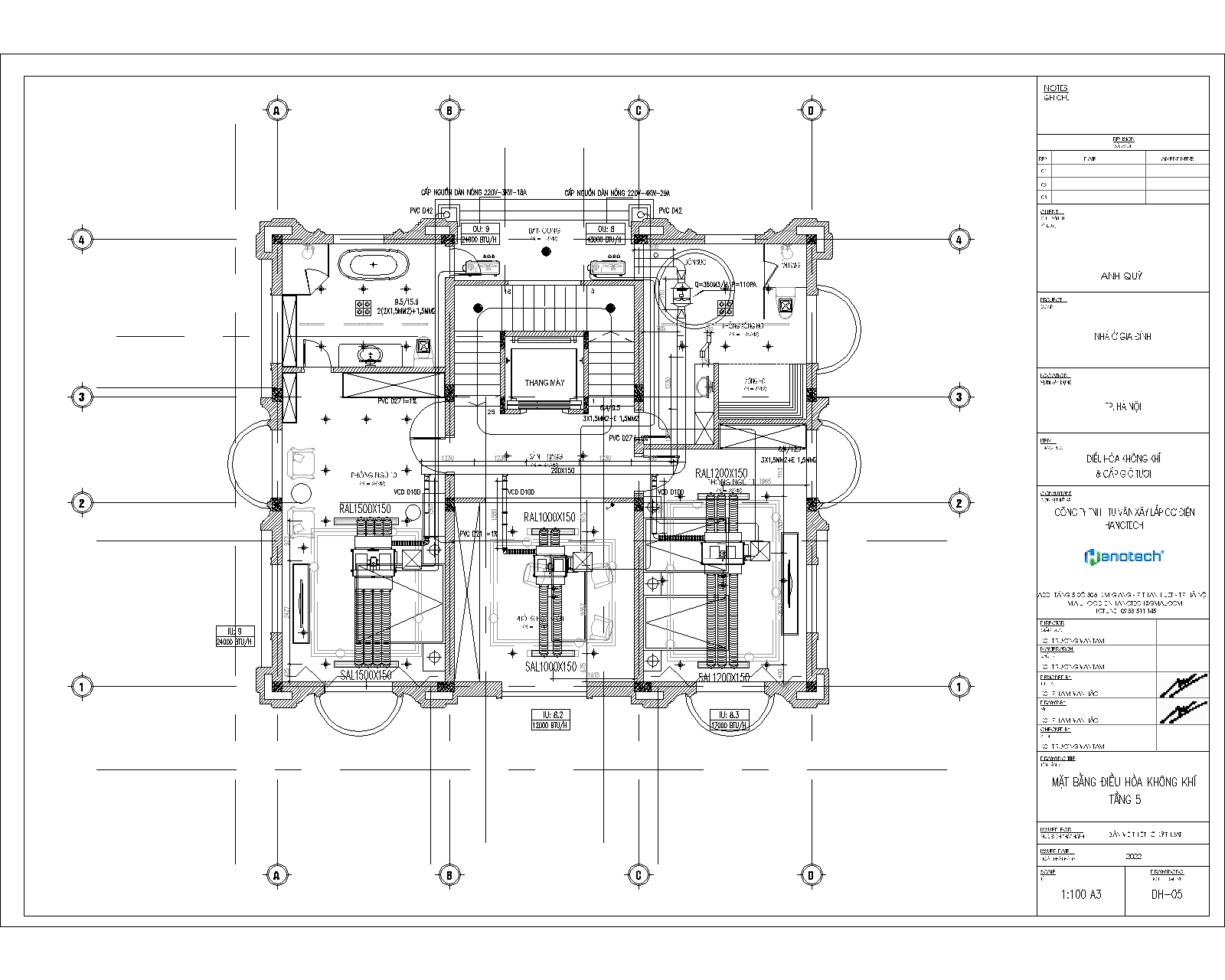
- 02 hệ điều hoà Multi Mitsuheavy 2 chiều Inventer, dàn nóng 42700 btu/h và 7 dàn lạnh âm trần nối ống gió. Bố trí nằm tại các phòng ngủ nhỏ tầng 3, 4, 5.

Bản vẽ mặt bằng điều hoà không khí tầng 4

Bản vẽ mặt bằng điều hoà không khí tầng 5
- 01 bộ điều hoà treo tường cục bộ 2 chiều Inventer, công suất 12000 btu/h. Bố trí tại phòng ngủ 01 (phòng ngủ giúp việc) tại tầng 1.
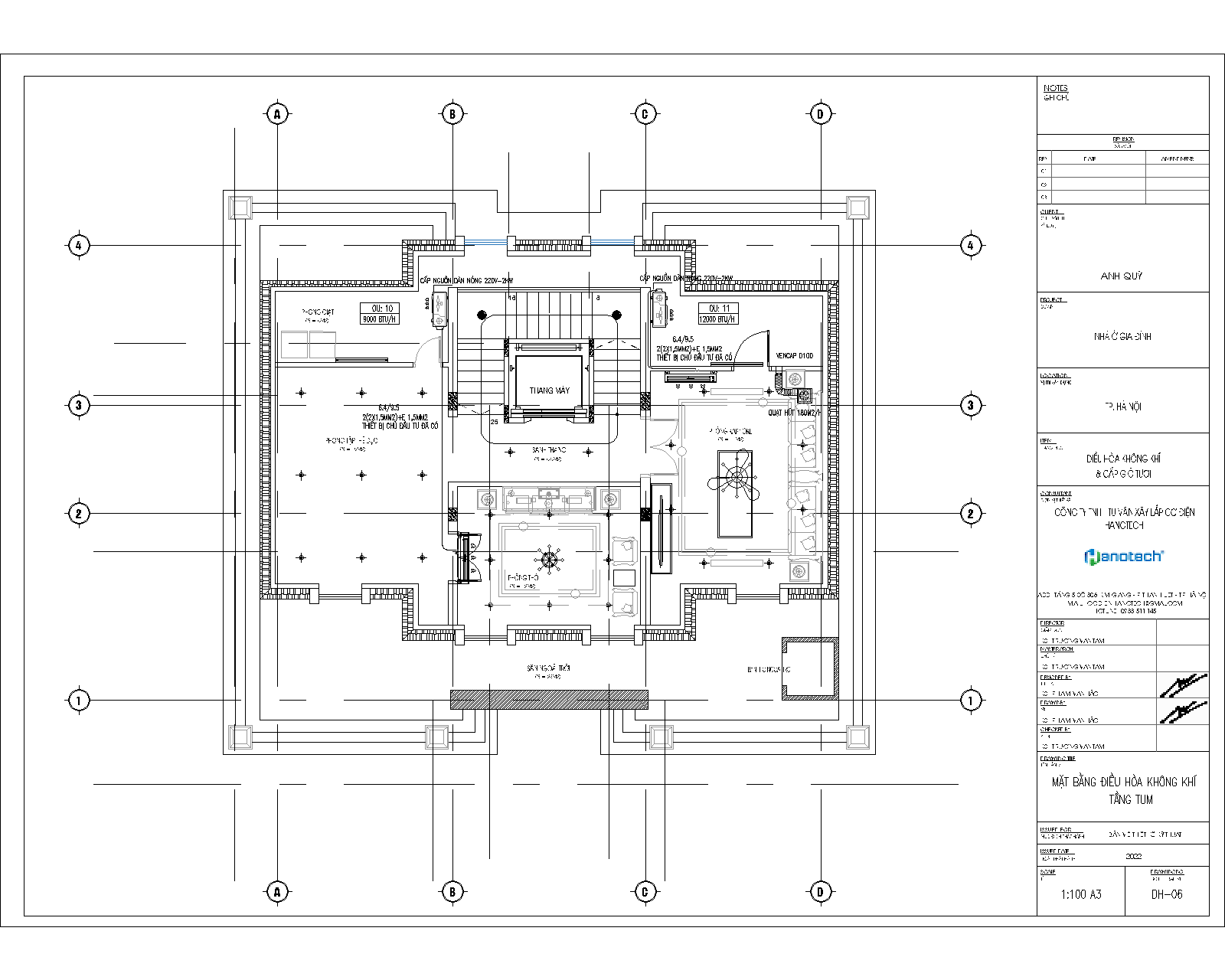
- Tầng 6 gồm phòng thờ và phòng giải trí Karaoke sử dụng điều hoà đã có của Chủ đầu tư.

Bản vẽ mặt bằng điều hoà không khí tầng 6
Bắt đầu thi công tháng 9 năm 2022, hoàn thành bàn giao đưa vào sử dụng tháng 3 năm 2023.
Thông số thiết bị sử dụng cho công trình:

Ảnh chuyển động
III) Một số hình ảnh trong quá trình thi công hệ thống điều hoà, thông gió cho công trình

Công đoạn chuẩn bị, tập kết vật tư thiết bị tại công trình

Công đoạn chuẩn bị, tập kết vật tư thiết bị tại công trình

Thi công lắp đặt đường ống đồng, ống thoát nước ngưng, dây điện
Lắp đặt dàn lạnh điều hoà âm trần nối ống gió

Thi công lắp đặt đường ống đồng, ống thoát nước ngưng, dây điện
Lắp đặt dàn lạnh điều hoà âm trần nối ống gió

Lắp đặt dàn nóng điều hoà âm trần nối ống gió

Kiểm tra thông số kỹ thuật khi chạy thử hệ thống

Hình ảnh sau khi hoàn thiện bàn giao công trình
IV) Hàng năm chủ đầu tư tin tưởng giao cho Hanotech thực hiện việc kiểm tra bảo trì bảo dưỡng hệ thống:

Vệ sinh bằng nước đối với Quạt và đường ống tản nhiệt Dàn nóng

Cửa gió điều hoà trước khi vệ sinh

Cửa gió điều hoà sau khi vệ sinh

Kiểm tra, đo lại các thông số hoạt động của máy,
bàn giao cho Chủ đầu tư tiếp tục sử dụng
V) Bên cạnh đó, chủ đầu tư tin tưởng giao cho Hanotech thực hiện việc thi công lắp đặt hệ thống chống sét:

Lắp đặt hệ thống chống sét hãng Liva, model LAP-CX40, xuất xứ Thổ nhĩ kỳ

Lắp đặt kiểm tra tiếp địa chống sét












